- トップページ
- 新築一戸建てをエリアから探す
- 千葉市花見川区
- 幕張町
- 千葉市花見川区幕張町3丁目 全3棟3号棟
新築一戸建て
千葉市花見川区幕張町3丁目 全3棟3号棟
情報更新日:2026/04/13 次回更新予定日:2026/04/28
所在地千葉県千葉市花見川区幕張町3丁目[周辺地図]
交 通京成千葉線「京成幕張」駅徒歩10分





▽京成千葉線《京成幕張》駅徒歩10分、自然素材の健康住宅
◆◆
~住まい探しならアイリンクホームにお任せ~
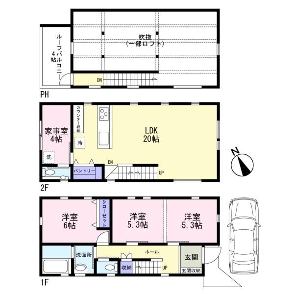
眺めの良いルーフバルコニー
家事室採用
リビングイン階段
保育園徒歩14分
小学校徒歩3分
コープ徒歩15分
◆◆
~住まい探しならアイリンクホームにお任せ~
眺めの良いルーフバルコニー
家事室採用
リビングイン階段
保育園徒歩14分
小学校徒歩3分
コープ徒歩15分
物件詳細情報
物件No.30000748835
| 所在地 | 千葉県千葉市花見川区幕張町3丁目 | ||
|---|---|---|---|
| 交通 | 京成千葉線「京成幕張」駅徒歩10分 総武線「幕張」駅徒歩12分 京成本線「京成大久保」駅徒歩35分 |
||
| 間取 | 2SLDK | ||
| 土地面積 | 81.99m² 公簿 | ||
| 建物面積 | 98.13m² | ||
| 構造・規模 | 木造 2階建て | 築年・入居 | 2026年2月 |
| バルコニー | 南東向き | 建物現況 | 完成済 |
| 駐車スペース | あり | 国土法届出 | 不要 |
| 地目 | 宅地 | 用途地域 | 無指定地域 |
| 建ぺい率 | 60% | 容積率 | 200% |
| 都市計画 | 市街化調整区域 | 権利種類 | 所有権 |
| 接道 | 南東側8.9M道路に接道 | 小学校区 | 幕張東小学校(250m) |
| 中学校区 | 幕張中学校(800m) | 取引態様 | 一般 |
| 設備 | 本下水 公営水道 公共下水 公共下水 整形地 閑静な住宅地 南側道路面す 前道6m以上 階建 2階建 部屋向き 南東向き 採光面 2面採光 全室2面採光 日当り良好 通風良好 LDK広さ 20帖以上 吹抜け オール電化 上水道 公営 汚水 下水道 フローリング 全居室フローリング 複層ガラス リビング階段 収納スペース クローゼット シューズボックス システムキッチン カウンターキッチン パントリー 食器洗乾燥機 独立洗面台 浴室に窓 トイレ2ヶ所 バルコニー バルコニー有 ルーフバルコニー セキュリティ充実 周辺交通量少なめ 小学校 徒歩10分以内 間取り変更可能 |
||
| 備考・制限等 | 接道状況:一方 駐車場タイプ:カースペース |
||
こだわり項目
整形地閑静な住宅地南側道路全室2面採光吹抜け複層ガラス食器洗浄機オール電化浴室に窓全居室フローリングリビング階段トイレ2ヶ所温水洗浄便座システムキッチンカウンターキッチン陽当り良好通風良好
- ※価格は物件の代金総額を表示しており、消費税が課税される場合は税込み価格です。(1,000円未満は切り上げ。)
税率は引き渡し時期により異なりますので、各物件の詳細につきましてはお問い合わせください。 - ※敷地権利が借地権のものは価格に権利金を含みます。
- ※制作中に内容が変更される場合もありますので、あらかじめご了承ください。
- ※購入の前には物件内容や契約条件についてご自身で十分な確認をしていただくようにお願いいたします。
- ※完成予想図はいずれも外構、植栽、外観等実際のものとは多少異なることがあります。
- ※CG合成の画像の場合、実際とは多少異なる場合があります。
周辺地図
周辺施設一覧
- ショッピングセンター
- スーパー
- コンビニ
- ドラッグストア
- ホームセンター
- 飲食店
- その他店舗
- 商店街
- 大学
- 専門学校
- 高校・高専
- 中学校
- 小学校
- 保育園
- 幼稚園
- 公民館・児童館
- 病院
- 郵便局
- 役所
- 図書館
- 金融機関
- 警察・消防
- 趣味・娯楽施設
- 公園・運動施設
- 周辺の街並み
- 駅
- その他
お問い合せ先
- 株式会社アイリンクホーム
- お電話でのお問い合わせは
047-405-2200「ホームページを見た」とお問い合わせください - 千葉県船橋市前原西1-1-33 1F
- 営業時間:AM9:30~PM6:30
- 定休日:毎週火・水曜日
- 免許番号:千葉県知事免許(3)第16457号
- トップページ
- 新築一戸建てをエリアから探す
- 千葉市花見川区
- 幕張町
- 千葉市花見川区幕張町3丁目 全3棟3号棟





